Carrè, Piovene Rocchette - Immobile commerciale al grezzo
Richiesti € 300.000 - Trattativa riservata Unica Immobiliare Schio, Via della Macina 2, tel: 0445.1880689
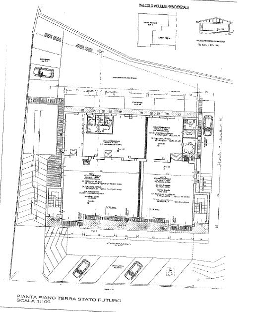
Vendesi immobile commerciale al grezzo fronte strada composto da piano interrato con scivolo per parcheggio automobili mq. 800; al piano terra negozio vetrato di mq. 500; al piano primo uffici o appartamento di mq. 230, più terrazze di mq. 170.
Rif. CMS67-3
IMMAGINI MOMENTANEAMENTE NON DISPONIBILI
Caratteristiche tecniche Negozi in Vendita
Metri quadrati
1200
Classe Energetica
ND
Contatta: Negozi in Vendita a Piovene Rocchette
Compila il seguente modulo di richiesta di informazioni per contattare il venditore.
Altri Negozi in Vendita che potrebbero
interessarti
Metri quadrati : 149Classe Energetica : DPiovene Rocchette: Negozio commerciale in centro storico. € 50.000 info. 0445824740
Piovene Rocchette via Libertà 122: nel cuore del centro storico, ...
Metri quadrati : 74Classe Energetica : NDAffittasi negozio con vetrine, da ampie metrature (74mq), molto luminoso e ben servito.
Dispone di un deposito, riscaldamento autonomo.
Disponibile ...